College Street, Petersfield
Market Status: Available
- Commercial Property and Residential Property
- Large Outdoor Space
- Basement
- Loft Room and Loft Access
- Downstairs W.C
- Separate Access To both Properties
- Freehold
- NO CHAIN
- Investment Opportunity
- Office Space
The Local Area
Filter Map Markers
Click or tap items on the list below to toggle their display on the map.

College Street, Petersfield
Immediate ‘exchange of contracts’ availableBeing sold via ‘Secure Sale
This property will be legally prepared enabling any interested buyer to secure the property immediately once their bid/offer has been accepted. Ultimately a transparent process which provides speed, security and certainty for all parties.
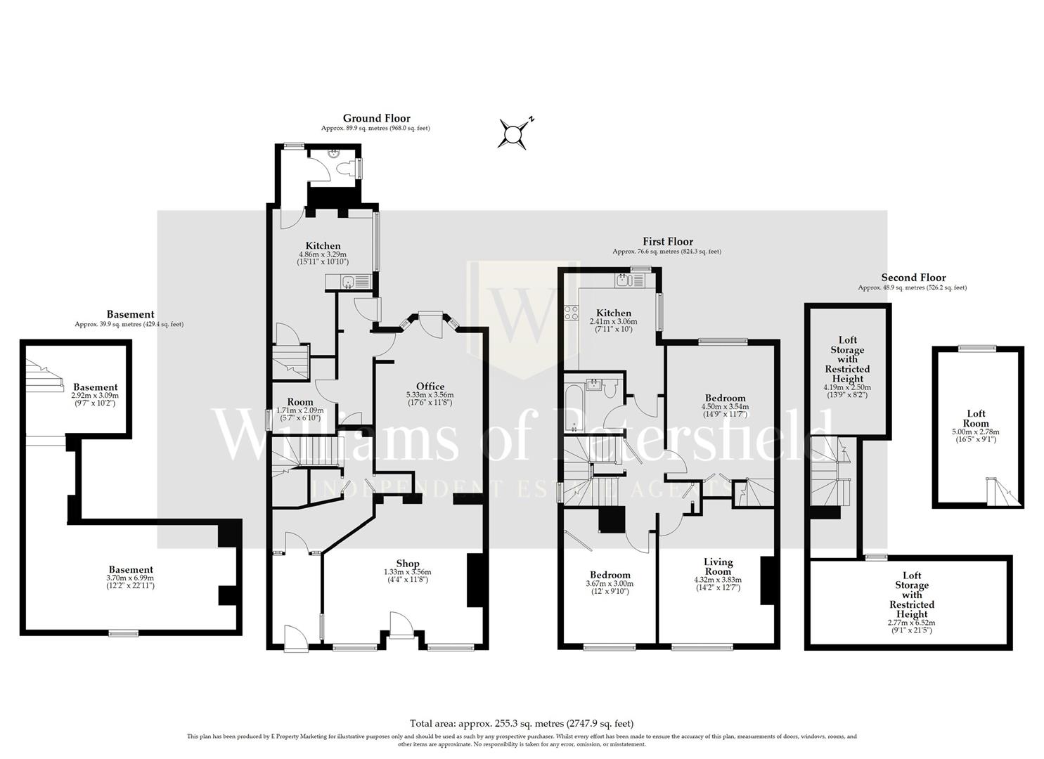
The commercial unit on the ground floor has two open plan rooms, along side a kitchen, a downstairs W.C, a large store room and an exceptional amount of outdoor space around the back. This could be the perfect opportunity to start that business you may or may not be dreaming of or, the perfect opportunity to rent out the space and earn a separate income. The lower level accommodates a historic basement which covers approximately 429.4 square feet of floor space. A rare opportunity to purchase in Petersfield high-street.
Completing the attractiveness of the property is the large residential flat above. Recently renovated with a modern design, it hosts two large bedrooms, a living room, a spacious kitchen, a large family bathroom and a loft room above, which could be ideal office space, storage or another bedroom. The flat also has access to large loft space and separate access from the street, allowing the commercial floor and the residential floor sperate living.
This property is the perfect investment and a great opportunity. Viewing is highly recommended.
Commercial EPC – DResidential EPC – DTax Band – CFreehold
Enquire about this property
Please use the form below to make an enquiry, we will get back to you as soon as possible.















